Langfristiges Projekt –
Umbau auf Raten eines Wohnhauses in Mauerbach bei Wien.
Wir können Ihnen bei Ihrem Projekt helfen!
Projekt Mauerbach
Konzept:
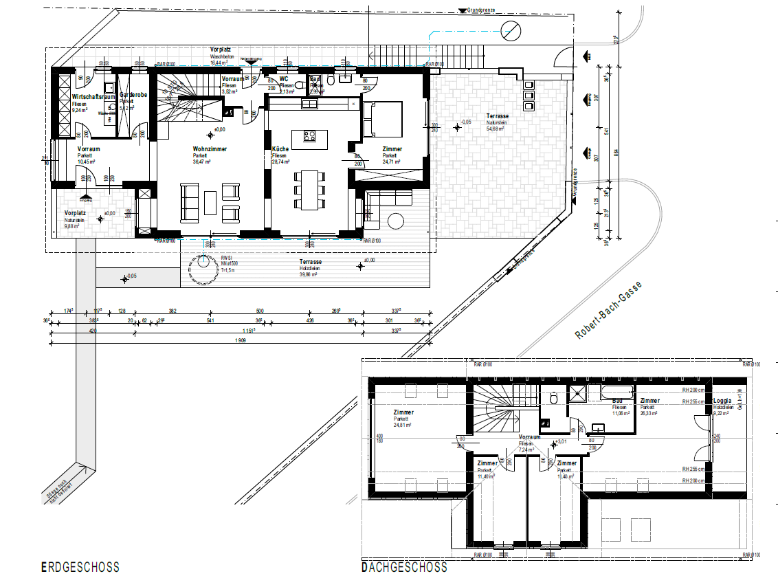
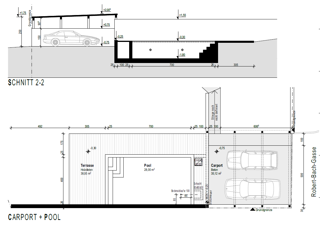
Das Projekt in der Nähe von Wien wird langfristig realisiert. Dazu hat Diller ZT die Entwurfspläne und Verlegepläne erstellt.
Aktuell wurde die Terrasse komplett saniert. Als Belag wurden Natursteine gewählt.
Projekt Details
Ort:NÖ
Bau: Umbau eines Wohnhauses
Auftraggeber: Privat
Ausführung: 2024 – 26
Fotos: DILLERZT
Weitere Projekte
Götzendorf
Gerade Linien und Formen, eingebettet in die Natur - Umbau einer Scheune zu einem Wohnhaus.
Tribuswinkel
Zeitgemäße Funktionalität gepaart mit ästhetischer Eleganz - Zu- und Umbau in Niederösterreich.
Rodaun
Schmuckstück in Rodaun - Komplettsanierung und Entkernung: so soll es final aussehen.
Großenzersdorf
Sanierung einer Badehütte - Kleines Haus am Donau-Oder-Kanal wird entkernt. Wir
Mauerbach
Langfristiges Projekt - Umbau auf Raten eines Wohnhauses in Mauerbach bei Wien.
Grinzing
Schönes Anwesen im Weinort - Zubau für den Tradionsheurigen in Grinzing: so soll es final













