Zeitgemäße Funktionalität gepaart mit ästhetischer Eleganz –
Zu- und Umbau in Niederösterreich.
Wir können Ihnen bei Ihrem Projekt helfen!
Projekt Tribuswinkel
Konzept:
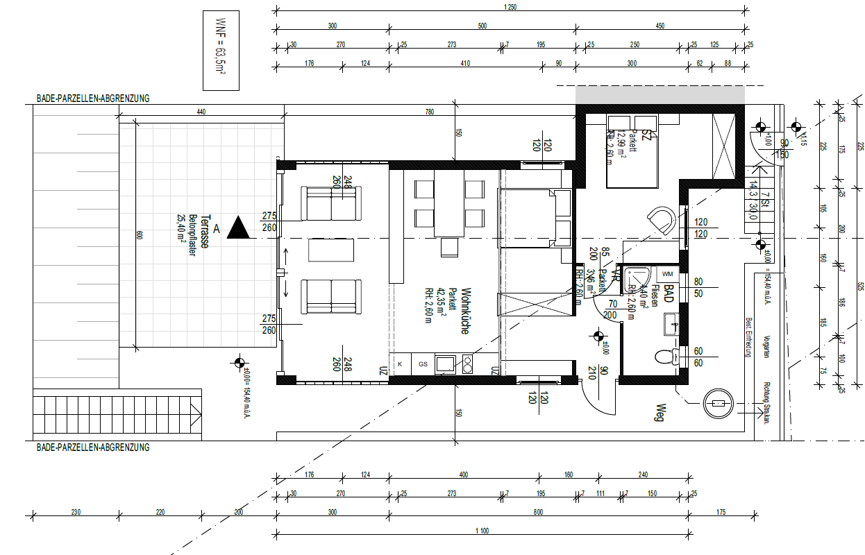
Das Projekt in NÖ vor den Toren der Stadt Wien umfasst einen Um-, Zu- und Neubau, der die bestehende Struktur modernisiert und erweitert. Der Entwurf verfolgt das Ziel, zeitgemäße Funktionalität mit ästhetischer Eleganz zu verbinden und gleichzeitig den Bedürfnissen des privaten Auftraggebers gerecht zu werden.
Projekt Details
Ort:NÖ
Bau: Um-, Zu- und Neubau
Auftraggeber: Privat
Ausführung: 2024 – 25
Fotos: DILLERZT



Weitere Projekte
Götzendorf
Gerade Linien und Formen, eingebettet in die Natur - Umbau einer Scheune zu einem Wohnhaus.
Tribuswinkel
Zeitgemäße Funktionalität gepaart mit ästhetischer Eleganz - Zu- und Umbau in Niederösterreich.
Rodaun
Schmuckstück in Rodaun - Komplettsanierung und Entkernung: so soll es final aussehen.
Großenzersdorf
Sanierung einer Badehütte - Kleines Haus am Donau-Oder-Kanal wird entkernt. Wir
Mauerbach
Langfristiges Projekt - Umbau auf Raten eines Wohnhauses in Mauerbach bei Wien.
Grinzing
Schönes Anwesen im Weinort - Zubau für den Tradionsheurigen in Grinzing: so soll es final











